株式会社らく~だ
お問い合せ
|
サイトマップ
HOME
ピカコン
らく~だハウス
らく~だハウスの使い方
環境対策
完成までの工程表
組み立て方
組立図
サイズと価格
らく~だ村展示場
らく~だハウス設置例
らく~だハウス内部
メディア情報
会社概要
リンク集
HOME
>
らく~だハウス
>らく~だハウス組立図
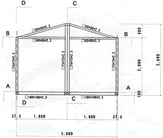
■断面図
らく~だハウスの構造は、鉄骨なのでとても頑丈!
■土台
ページTOPへ▲
【
株式会社らく~だ
】
ピカコン
|
らく~だハウス
|
イーヤマ処理場
|
会社概要
|
リンク集
|
サイトマップ
|
お問い合せ
|
HOME
【
株式会社山全
】
土木工事
|
建築工事
|
地すべり工事
|
保有機械
|
社会貢献
|
保有資格
|
表彰工事一覧
土木施工技術論文
|
県産スギ型枠使用の取組
|
セーフティガイドレール
|
アスコ処理場
|
会社概要
(C) Copyright 2008 YAMAZEN. All rights reserved.